Your dream American-style home on the Mediterranean

Dreaming of a modern villa by the sea? USpania and WES Engineering System offer U.S. clients a unique opportunity: find the perfect plot in Spain and build a fully customized home with cutting-edge American building systems — all managed from start to finish.

Build a home in Spain — Your way

USpania and WES Engineering System have partnered to bring a complete solution to Americans wanting to build their ideal home in Spain. You choose the location, you define the vision — and we make it real.

With this collaboration, you get:

  • Access to exclusive land plots across Costa Blanca Norte, Costa Blanca Sur, Murcia, and more

  • Custom-designed homes using WES’s American-engineered modular building systems

  • The option to work with your own architect or collaborate with ours

  • Full guidance and support from U.S. to Spain

Check our work:

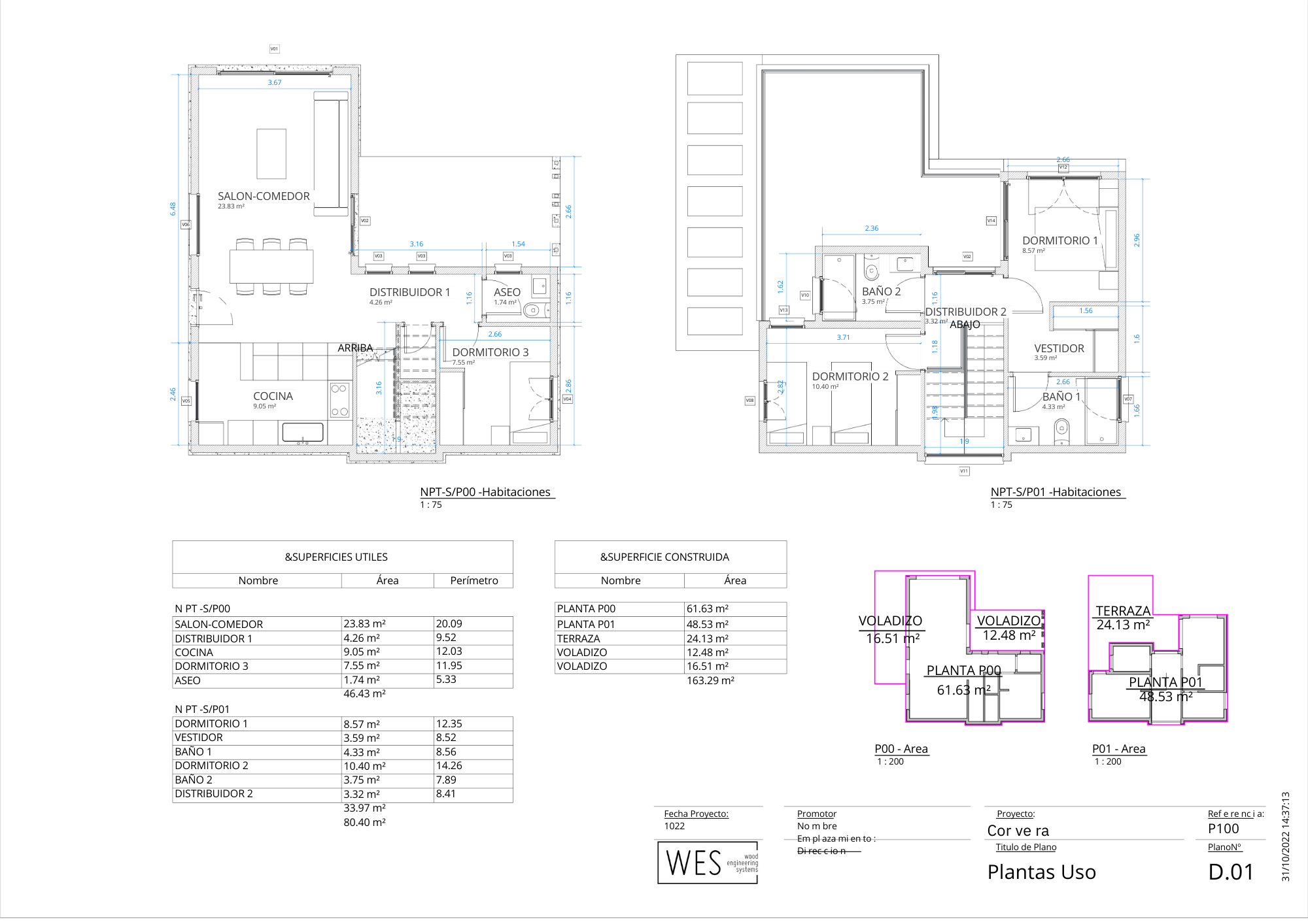
See our blueprints for a house in Corvera:

Want to know more about WES efficiency? Check out this document.

American engineering. Mediterranean living

WES brings fast, efficient, and customizable building solutions developed in the U.S. USpania brings local expertise, a trusted network, and the ability to help you find the perfect plot for your dream home in Spain.

Together, we provide:

  • A seamless cross-border homebuilding experience.

  • Fast-track modular construction  without sacrificing quality.

  • Personalized, bilingual support.

  • Tailored solutions for families, investors, and retirees.

Premium locations available

Explore hand-picked regions perfect for your Mediterranean home:

  • Costa Blanca Norte – Altea, Denia, Javea.

  • Costa Blanca Sur – Torrevieja, Orihuela Costa, Guardamar.

  • Murcia Region – Cartagena, La Manga, inland estates.

  • Costa Calida – Hidden gems with sea views.

  • Costa de Almeria – Desert landscapes, natural parks, and pristine beaches

  • Costa del Sol – Marbella, Estepona, Mijas, and the heart of Andalusian luxury

We also offer location scouting if you have a specific area in mind.

From vision to reality in 4 simple steps

1. Tell us what you want

Layout, location, number of rooms, finishes.

2. Find the perfect plot

We will help you locate land that matches your vision.

3. Design & build

With WES or your architect, your dream house takes shape.

4. Delivery & support

Permits, logistics, and handover. All covered.

Timeline 2d
Timeline 3d

Difference between 2D and 3D

The key difference between 2D On-Site and 3D Modular construction lies in where most of the work takes place. In the 2D system, the structural panels are manufactured in the factory and then transported flat to the site, where assembly, finishes, and installations are carried out. This approach offers more design flexibility and lower transport costs, but requires more time and labor on-site. 

In contrast, the 3D Modular system delivers prefinished volumetric modules that leave the factory almost complete—already including windows, doors, installations, and finishes. Once transported, they are quickly assembled on the foundation, significantly reducing on-site work and ensuring maximum quality control. In short, 2D means more customization and on-site execution, while 3D provides faster installation and factory-level precision.

Want to know more about WES efficiency? Check out this document.

Wes projects 5
Wes projects 1
Wes projects 2
Us houses 5
Us houses 3
Wes projects 11
Wes projects 9
Wes projects 8
Wes projects 6
Wes projects 3
Us houses 2
Wes projects 7
Us houses 1
Wes projects 4
1

Let’s make it happen!

Whether you’re dreaming of a holiday home, relocating, or investing, we’re here to guide you every step of the way.

Only the best for you!

We have the best professionals to help you with everything—before, during, and after your move.

Compare listings

Compare